Środkowy segment 5- pokojowy z garażem.
mazowieckie, grodziski, Grodzisk Mazowiecki
- DRUKUJ
- UDOSTĘPNIJ
- 1 090 000 zł7 974 zł/m2
- ZAPAMIĘTAJ
- Liczba pokoi:6
- Powierzchnia:137 m2
- Cena: 1 090 000 zł
Opis nieruchomości
Nowoczesne osiedle w Grodzisku Maz. w doskonałej lokalizacji.
Środkowy segment.
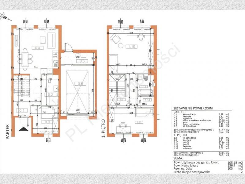
Parter (o pow. 80 m2)
- salon 26 m2- z aneksem kuchennym
- sypialnia 9 m2
- łazienka 6,4 m2
- komunikacja z kl. schodową 11 m2
- garaż 22 m2 z pom. technicznym 5 m2 (z dodatkowym wyjściem do ogrodu)
Piętro (o pow. 57 m2):
- 4 sypialnie (25 i 15 m2- z możliwością podziału)
- schowek 2 m2
- łazienka 4,3 m2
- korytarz z kl. schodową 11 m2
Dom zaprojektowano bez skosów na piętrze (pomieszczenia pełnej wysokości).
Stan deweloperski.
Wysoka dbałość o każdy detal wykończenia.
Wszystkie media miejskie (przyłącza w budynku): pompa ciepła, fotowoltaika, światłowód.
Całość ogrodzona i zagospodarowana:
- 2 miejsca postojowe
- oświetlenie zewnętrzne
Zakończenie inwestycji do 30.09.2026r.
Sprzedawca wystawia fakturę VAT, co zapewnia zwolnienie kupującego z podatku PCC.
Do PKP i szkoły 1,5 km
Polecam
Nad jakością obsługi oferty czuwa pan Adach Paweł - licencjonowany pośrednik w obrocie nieruchomościami, nr licencji 11655
Szczegóły ogłoszenia
| Numer oferty | D-87705-5 |
|---|---|
| Typ oferty | Dom na sprzedaż |
| Cena | 1 090 000 zł (7 974 zł/m2) |
| Rynek | pierwotny |
| Powierzchnia | 137 m2 |
| Pow. działki | 105 m2 |
| Liczba pokoi | 6 |
| Rok budowy | 2025 |
| Materiał budowy | silikat |
| Zabezpieczenia | - |
| Ogrzewanie | - |
| Media | prąd, woda, kanalizacja |
| Inf. dodatkowe | garaż |
Lokalizacja i okolica
| Województwo | mazowieckie |
|---|---|
| Powiat | grodziski |
| Miasto | Grodzisk Mazowiecki |
| Dzielnica | - |