Hala magazynowa z domem 340 m2
mazowieckie, grodziski, Jaktorów-Kolonia
- DRUKUJ
- UDOSTĘPNIJ
- 2 980 000 zł8 765 zł/m2
- ZAPAMIĘTAJ
- Liczba pokoi:4
- Powierzchnia:340 m2
- Cena: 2 980 000 zł
Opis nieruchomości
Nowy budynek o pow. 340 m2 (dom z halą) w gminie Jaktorów.
Oferowana nieruchomość jest doskonałą ofertą dla osób poszukujących miejsca do zamieszkania i prowadzenia działalności gospodarczej najlepiej związanej z funkcją magazynową lub usługową (warsztat, produkcja itp.)
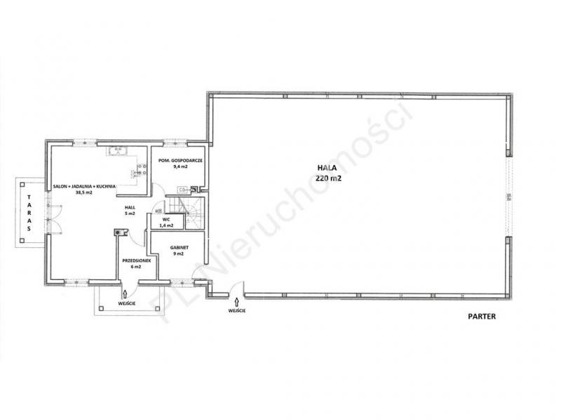
Dom o pow. użytkowej 120 m2, wykończony, gotowy do zamieszkania.
Na parterze:
- pokój dzienny z urządzonym aneksem kuchennym - z wyjściem na taras
- pom. gospodarcze (pralnia / kotłownia)
- wc
- wiatrołap
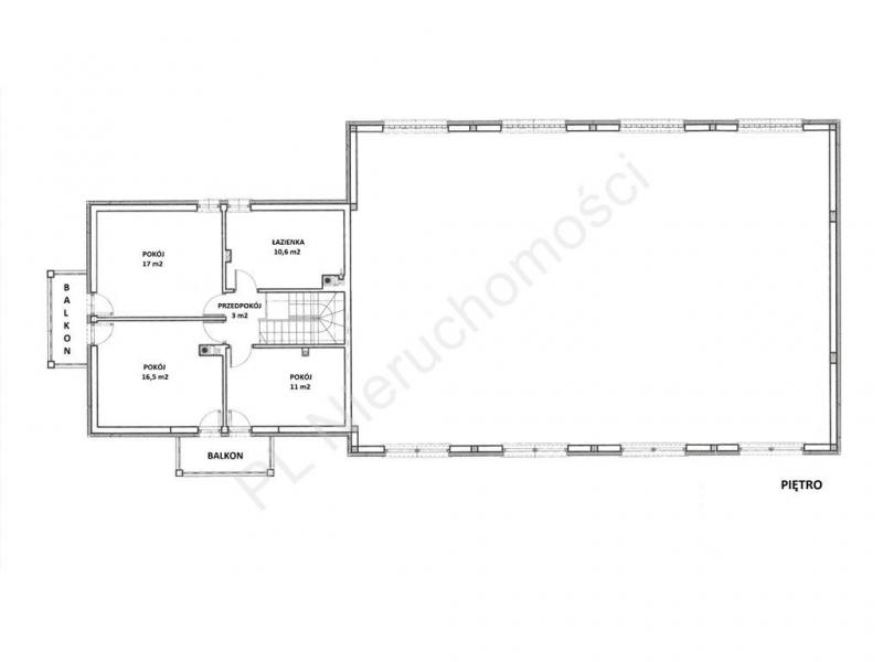
Na piętrze:
- 3 sypialnie z balkonami
- widna łazienka
Cena obejmuje pełne umeblowanie i wyposażenie domu.
Hala o pow. 220 m2 wraz z biurem do obsługi Klienta.
Wys. hali 4,2 m.
Dużym atutem budynku jest możliwość dowolnej aranżacji funkcji wewnętrznej, można wydzielić np.: toaletę, szatnię, pomieszczenia gospodarcze itp.
Media: prąd- fotowoltaika 9 kW, woda miejska, gaz- ogrzewanie gazowe, światłowód, kanalizacja własna.
Dodatkowe udogodnienia obejmują klimatyzację, ogrzewanie podłogowe, oświetlenie na zewnątrz budynku, alarm i monitoring.
Zagospodarowany ogród o pow. niespełna 1500 m2 .
Wjazd na posesję z drogi asfaltowej.
Zabudowana wiata garażowa dwustanowiskowa przeznaczona na auta osobowe.
Zapraszam do zapoznania się z tą wyjątkową ofertą. Idealna dla rodzin lub osób poszukujących przestrzeni do prowadzenia działalności gospodarczej.
Nad jakością obsługi oferty czuwa pan Adach Paweł - licencjonowany pośrednik w obrocie nieruchomościami, nr licencji 11655
Szczegóły ogłoszenia
| Numer oferty | D-87934-5 |
|---|---|
| Typ oferty | Dom na sprzedaż |
| Cena | 2 980 000 zł (8 765 zł/m2) |
| Rynek | wtórny |
| Powierzchnia | 340 m2 |
| Pow. działki | 1 484 m2 |
| Liczba pokoi | 4 |
| Rok budowy | 2019 |
| Materiał budowy | inne |
| Zabezpieczenia | system alarmowy |
| Ogrzewanie | gazowe |
| Media | prąd, woda, gaz, kanalizacja |
| Inf. dodatkowe | garaż, klimatyzacja, umeblowane |
Lokalizacja i okolica
| Województwo | mazowieckie |
|---|---|
| Powiat | grodziski |
| Miasto | Jaktorów-Kolonia |
| Dzielnica | - |