Codzienność jak wakacje- zamieszkaj w Milanówku.
mazowieckie, grodziski, Milanówek
- DRUKUJ
- UDOSTĘPNIJ
- 980 000 zł9 423 zł/m2
- ZAPAMIĘTAJ
- Liczba pokoi:4
- Powierzchnia:104 m2
- Cena: 980 000 zł
Opis nieruchomości
Ładne mieszkanie o pow. 104 m2 (parter domu) z niezależnym ogrodem o pow. 780 m2.
Mieszkanie klimatyczne i przestrzenne, wys. 2,8 m.
- salon z kominkiem
- 3 wygodne sypialnie
- urządzona kuchnia z AGD
- widna łazienka
- garderoba
- duży holl
Z salonu wyjście na słoneczny taras o pow. 15 m2.
W pokojach na podłodze parkiet dębowy, w kuchni i holu- gres.
Widna łazienka z wanną narożną i prysznicem.
Dodatkowo w podpiwniczeniu 2 pomieszczenia gospodarcze (o pow. 19,9 m2).
Dom po przeprowadzonym generalnym remoncie w 2000 r. (nowy dach, ocieplenie i tynk, instalacje wodno-kanalizacyjne, instalacje elektryczne i gazowe, okna PCV, grzejniki).
Wszystkie media miejskie, ogrzewanie gazowe.
Urokliwa działka- z licznymi nasadzeniami.
Podjazd z kostki brukowej miejsce parkingowe na 2 samochody.
Położenie nieruchomości gwarantuje bliski dostęp do pełnej infrastruktury, jednocześnie z gwarancją ciszy.
Polecam
Nad jakością obsługi oferty czuwa pan Adach Paweł - licencjonowany pośrednik w obrocie nieruchomościami, nr licencji 11655
Szczegóły ogłoszenia
| Numer oferty | M-88615-5 |
|---|---|
| Typ oferty | Mieszkanie na sprzedaż |
| Cena | 980 000 zł (9 423 zł/m2) |
| Rynek | wtórny |
| Powierzchnia | 104 m2 |
| Piętro | 0/0 |
| Liczba pokoi | 4 |
| Rok budowy | 1965 |
| Materiał budowy | cegła |
| Media | internet, telewizja |
| Inf. dodatkowe | piwnica, ogródek |
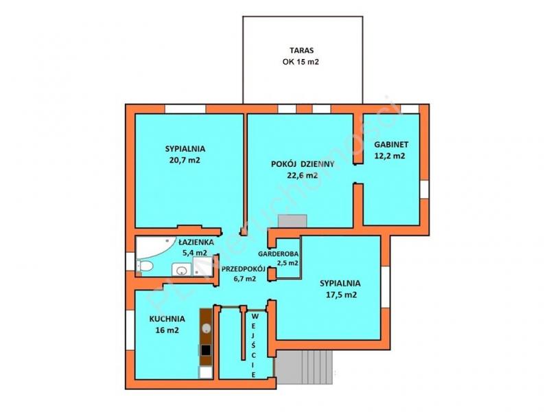
Szczegóły pomieszczeń
| nazwa | powierzchnia | opis |
|---|---|---|
| kuchnia | 16m2 | - |
| przedpokój | 6.7m2 | podłoga: gres, szafa wnękowa |
| toaleta | - | - |
| łazienka | 5.4m2 | podłoga: gres, glazura, z oknem |
| pokój | 22.6m2 | podłoga: parkiet, strona świata: płd |
| pokój | 20.7m2 | podłoga: parkiet, strona świata: płd-wsch |
| pokój | 17.5m2 | podłoga: parkiet, strona świata: zach |
| pokój | 12.2m2 | podłoga: mozaika, strona świata: zach, amfilada |
Lokalizacja i okolica
| Województwo | mazowieckie |
|---|---|
| Powiat | grodziski |
| Miasto | Milanówek |
| Dzielnica | - |